• 2160阅读
  • 13回复

[义乌楼市]坚决拆除!北苑一小区业主私封连廊天井遭拆除 [复制链接]

上一主题 下一主题
 

发帖
971
奖学金
1093
威望
3404
微信分享到朋友圈 图酷模式 只看楼主 倒序阅读 腔主  发表于: 2022-06-21
马上注册,结交更多好友,享用更多功能,让你轻松玩转义乌十八腔,更多精彩评论请登录后查看。
  已有账号?点击登录
关闭

小区业主为了增加自己房屋的使用面积,私自将设备间和连廊进行了封包,舒服了自己,却给别的业主添了堵,也增加了消防安全隐患。6月16日,义乌市综合行政执法局北苑大队对绿城兰园某业主私自封包连廊天井,占用公共区域的违法建筑进行了拆除。


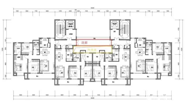
当前,很多小区高层是两梯四户,每层会有一段联通电梯间的长廊,长廊和中间户之间隔着悬空天井和设备平台。由于天井日常并无使用功能,就有部分业主就打起了封包的主意,认为自己房屋一侧的那段可以浇筑起来“收为己用”。


对此,义乌市综合行政执法局北苑大队自去年12月底,绿城兰园交付以来,就严格按照规划要求进行监管,一方面,积极关注业主的思想动态,借助业主群、物业管理委员会加强对规范装修的宣传教育,营造小区良好的施工氛围;另一方面,强化对违规封包阳台、设备平台、连廊等违法行为的巡查处置,除每2日对小区进行实地查看,还积极借助物业、社区实现多维度管控,发现问题马上消灭在萌芽状态。在执法大队的严密管控下,一直以来,绿城兰园整体情况都十分稳定。


今年6月初,小区物业发现兰园某单元17楼一业主私自将连廊天井进行了封包,就第一时间向执法大队进行了汇报。在接到小区物业的举报后,执法队员立即赶往现场进行查看,发现此处业主已用铝合金、钢化玻璃将设备平台和连廊护栏以上的部门进行了封闭,并准备对房屋一侧和连廊之间的天井进行打通浇筑,做成独立的使用空间。


执法人员当即对其违法行为进行了制止,并联合社区、物业对其进行了约谈,严肃阐明了其违法行为所涉及的相关法律法规,以及可能对住户的居住安全、邻里和谐等产生的不利影响。最终,该业主同意由执法部门协助拆除。




据悉,两梯四户之间的连廊有消防通道的作用,如果发生火灾,消防人员可以借助中空天井和连廊,第一时间到达事发点,住户也能通过这里安全有序的撤离,如果封起来,发生火灾时,浓烟无法疏散,救援也无法第一时间到达,会造成不必要的人员伤亡和财产损失。而且,连廊从外观上看,都是统一的,如果私自封起来,就会影响整栋楼的美观度。此外,将连廊的中空天井封包起来变成私人空间,虽然扩大了使用面积,但违反规划要求进行局部浇筑和改变原连廊的框架结构,都极有可能破坏房屋承重和护栏稳固性,增加安全风险,必须严厉制止!


接下来,执法大队将协同社区、物业进一步加强小区违法建设的管理工作,通过畅通群众投诉、强化物业管理、优化社区监督等多种形式,确保小区建设严格按照规划要求有序进行。

和谐北苑

1条评分威望+1
特别声明:帖子及回帖全部内容为论坛用户自行上传发布并承担相应的法律责任,不代表本网站观点和立场,本网站仅提供信息存储服务。任何用户如认为页面上的特定内容涉及侵权,可通过页面底部侵权投诉指引向我们进行投诉。
本帖共有13条回复,请登录后查看。
  已有账号?点击登录
快速回复
限100 字节
如果您提交过一次失败了,可以用”恢复数据”来恢复帖子内容