• 1550阅读
  • 11回复

[城建规划]新凉亭幼儿园新建工程效果来了 [复制链接]

上一主题 下一主题
离线王炅
 

发帖
867
奖学金
600
威望
1493
微信分享到朋友圈 图酷模式 只看楼主 倒序阅读 腔主  发表于: 2022-11-14
马上注册,结交更多好友,享用更多功能,让你轻松玩转义乌十八腔,更多精彩评论请登录后查看。
  已有账号?点击登录
关闭

近日,由本院创作设计的新凉亭幼儿园新建项目完成了项目的初步设计评审工作,并且即将完成施工图审查工作。

项目建设符合《义乌市“十四五”教育设施布局规划》,是推进新一轮学前教育规划布局和建设,严格按“五同步”(同步规划、同步设计、同步建设、同步验收、同步投用)在城市有机更新、村庄整合集聚、区块开发建设时同步配建幼儿园,确保达到国家规范要求公办性质幼儿园覆盖面在50%以上,普惠性幼儿园覆盖面在90%以上,力争“十四五”末基本实现标准化幼儿园全覆盖,推动优质学前教育公共服务覆盖到每个社区和村庄。

一项目背景
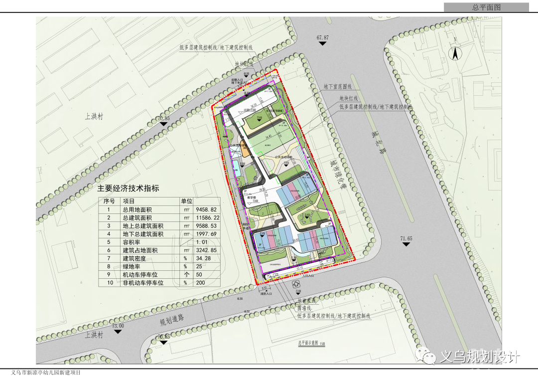
本项目位于义乌市位于城北路以西,宗泽北路以东,深洪路以南,拥军路以北,上洪村与青溪小区之间的长条形地块,总用地面积:9458.82 平方米。基地北侧为商业用地,东南西三侧为住宅用地。

二规划设计理念
设计以“藤蔓”为总体布局概念,在迎合当今现代建筑潮流的前提下,力求表现出幼儿园建筑的活跃空间,增强使用者的情感体验,打造义乌当地具有特色的幼儿园建筑,从以下方面予以具体展开:

(1)“藤蔓”的主体建筑:主体建筑设置于场地中心位置,基于基地较为狭长的形态特点,将人员动线作为建筑核心空间,在提高走廊利用率的同时形成更丰富的内部公共空间。在此基础上,每层生活单元与专业教室区布置在走廊两侧,意为“藤蔓生长的枝桠”,寓意着小朋友“顽强、坚韧、向上、成长”。

(2)建筑外部活动场地:环绕建筑的四周,各班专用活动场地散布在各生活单元附近,开拓为机动的活动场地。沿集中活动场地南北方向布置30m 跑道,沙坑等,利用地形高差及保留树木,通过加强空间营造,布置看台,巧妙融合建筑和地形,形成有趣的活动场地。

三设计分析
(1)出入口
本项目共设置三个出入口,分别设置在南侧和北侧,一个为人行主入口,另一个为消防出入口,两个出入口之间保证合理的安全距离。北侧布置一个后勤及车行入口。


(2)交通组织
连廊连接建筑主体,在雨天可避免雨淋,夏天可避免日晒。车行出入口与主入口分开布置,避免人车之间的干扰,小汽车及后勤车辆通过车行出入口直接进入地下室。


(3)立面处理
细部处理上,部分窗角采用弧形处理,同时山墙面点缀部分圆形及方形窗洞,增加构图趣味性,打造一个构图严谨而又形式多样的幼儿园建筑。


四结  语
钢筋混凝土的世界,常常让人感觉是冰凉的没有温度的。但是建筑人用心给了它们心生,让它们灵动、鲜活。让它们有了生命有了承载有了灵魂,让它们绽放魅力去吸引人类的目光。

我们将凭借优秀的团队实力和敬业精神为本项目提供优质的设计服务,为义乌市和后宅街道的教育事业发展添砖加瓦,为小朋友能有一个舒适、安全的学习生活保驾护航。

义乌规划设计

3条评分威望+3
特别声明:帖子及回帖全部内容为论坛用户自行上传发布并承担相应的法律责任,不代表本网站观点和立场,本网站仅提供信息存储服务。任何用户如认为页面上的特定内容涉及侵权,可通过页面底部侵权投诉指引向我们进行投诉。
本帖共有11条回复,请登录后查看。
  已有账号?点击登录
快速回复
限100 字节
批量上传需要先选择文件,再选择上传