• 5486阅读
  • 29回复

[城建规划]有机更新孝子祠地块三规划变更 [复制链接]

上一主题 下一主题
离线网站十五
 

发帖
8440
奖学金
12021
威望
65054
微信分享到朋友圈 图酷模式 只看楼主 倒序阅读 腔主  发表于: 2023-11-25
马上注册,结交更多好友,享用更多功能,让你轻松玩转义乌十八腔,更多精彩评论请登录后查看。
  已有账号?点击登录
关闭
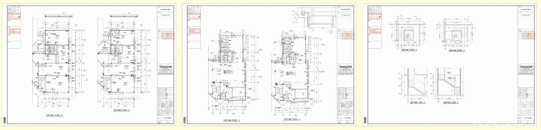
11月24日,义乌市有机更新孝子祠地块三规划变更进行了公示。



申请人义乌市润腾置业有限公司向本局提出申请,要求办理义乌市有机更新孝子祠地块三的规划调整手续。

调整内容为:S1幢一层商业配电间移至楼幢西北侧,商铺与物业大厅的分隔墙微移,物业用房楼梯的上楼位置由电梯右侧改为电梯左侧,二层楼梯的下楼位置相应修改,二层电梯原右侧储藏间改至左侧。

申请人已委托设计单位按规划条件、相关规定、设计规范等编制规划调整方案,并经稠城街道初步审查同意。根据《城乡规划法》、《行政许可法》及相关规定要求,现对该项目的规划变更调整予以公示,公示期为2023年11月25日至2023年12月4日。


整理:义乌房子网
编辑:网站十五

加房小白微信
陪你畅谈义乌楼市

48条评分威望+48
特别声明:帖子及回帖全部内容为论坛用户自行上传发布并承担相应的法律责任,不代表本网站观点和立场,本网站仅提供信息存储服务。任何用户如认为页面上的特定内容涉及侵权,可通过页面底部侵权投诉指引向我们进行投诉。
本帖共有29条回复,请登录后查看。
  已有账号?点击登录
快速回复
限100 字节
如果您在写长篇帖子又不马上发表,建议存为草稿